
Our largest, with room to grow and a second bathroom...
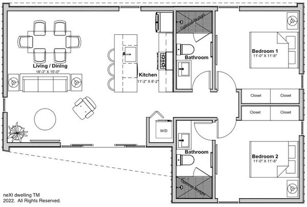
A stand alone 1000 square foot ADU complete with modern finishes and comfortable living, kitchen, dining spaces.
Includes 2 bedrooms with built in closets, 2 full bathrooms, stacked full size laundry, and an open floor plan kitchen (w/ island seating), dining and living area.
The neXt 1000 is perfect for a small family while increasing the value of your property.
Options available: Finish upgrades, solar, appliance upgrades, windows/door upgrades, landscaping.

neXt dwelling, LLC
2050 South Bundy Drive, Los Angeles, California 90025, United States
Copyright © 2022 neXt dwelling, LLC - All Rights Reserved.
Powered by GoDaddy
We use cookies to analyze website traffic and optimize your website experience. By accepting our use of cookies, your data will be aggregated with all other user data.